CONCEPTEUR de PROJET
Mon Projet Maison

Le Concepteur de Projet MPM vous permet d'associer un Terrain disponible en Loire Atlantique avec un Modèle de Maison MPM compatible.
Vous concevez ainsi votre propre Projet Terrain + Maison dont vous pouvez choisir les Options puis obtenir le Budget Estimatif.
La Procédure réalisable en quelques clics ne vous prendra qu'1 à 2 minutes.

.

TERRAINS DISPONIBLES
à La Grigonnais

Lots disponibles
Surface Orientation Prix NV
Choisissez le vôtre
Le Hameau des Suzins (11 lots disponibles)
11 Compatible
avec ajustement de 2,49m
489m²
43.000€
27 Compatible
avec ajustement de 2,49m
508m²
49.000€
28 Compatible
avec ajustement de 2,49m
515m²
49.500€
32 Compatible
avec ajustement de 1,49m
444m²
90°
47.000€
33 Compatible
avec ajustement de 1,49m
469m²
90°
46.000€
37 Compatible
avec ajustement de 2,49m
759m²
174°
56.000€
42 Compatible
avec ajustement de 1,49m
437m²
174°
47.500€
44 Compatible
544m²
174°
53.000€
46 Compatible
avec ajustement de 0,49m
525m²
174°
49.950€
47 Compatible
avec ajustement de 0,49m
525m²
174°
49.950€
48 Compatible
avec ajustement de 0,49m
563m²
174°
51.000€
Vous pouvez sélectionner un autre terrain compatible à tout moment.
La Grigonnais est Non Éligible au Dispositif PINEL (Zone C)

La Grigonnais (44170)

1.677 habitants
Concepteur de Projet - Commune Non Éligible au Dispositif PINEL
Commune Non Éligible au
Dispositif PINEL (Zone C)
En savoir plus sur La Grigonnais
(Ouverture dans un autre onglet)

Assérac

2 lots dans 1 lotissement

Corcoué-sur-Logne

34 lots dans 2 lotissements

Divatte-sur-Loire

7 lots dans 1 lotissement

Fay-de-Bretagne

1 lot dans 1 lotissement

Gétigné

1 lot dans 1 lotissement

Guérande

2 lots dans 1 lotissement

Herbignac

8 lots dans 2 lotissements

Joué-sur-Erdre

14 lots dans 1 lotissement

La Boissière-du-Doré

5 lots dans 1 lotissement

La Chevrolière

2 lots dans 1 lotissement

La Grigonnais

Le Hameau des Suzins : 11 lots

La Limouzinière

24 lots dans 1 lotissement

La Roche-Blanche

3 lots dans 1 lotissement

La Turballe

3 lots dans 1 lotissement

Le Landreau

11 lots dans 1 lotissement

Le Pallet

26 lots dans 1 lotissement

Legé

22 lots dans 2 lotissements

Les Moutiers-en-Retz

1 lot dans 1 lotissement

Les Touches

2 lots dans 1 lotissement

Mésanger

15 lots dans 2 lotissements

Moisdon-la-Rivière

25 lots dans 1 lotissement

Monnières

1 lot dans 1 lotissement

Oudon

7 lots dans 1 lotissement

Paimboeuf

1 lot dans 1 lotissement

Puceul

2 lots dans 1 lotissement

Saffré

4 lots dans 1 lotissement

Saint-Aignan-de-Grand-Lieu

1 terrain en diffus

Saint-Gildas-des-Bois

32 lots dans 1 lotissement

Saint-Lumine-de-Coutais

9 lots dans 2 lotissements

Saint-Nicolas-de-Redon

3 lots dans 1 lotissement

Saint-Père-en-Retz

1 lot dans 1 lotissement

Saint-Philbert-de-Grand-Lieu

5 lots dans 1 lotissement

Trignac

5 lots dans 1 lotissement

Vallons-de-l'Erdre

9 lots dans 2 lotissements

Vue

1 lot dans 1 lotissement

Le Marqueur Orange vous indique la Position de la Mairie de La Grigonnais.
Le Marqueur Bleu vous indique la Position du Lotissement sélectionné.

.
Vous avez sélectionné un Terrain sur la Commune de La Grigonnais et le Modèle de Maison CORNALINE.
Vous êtes à l'Étape 2 : Choisissez les Options de votre Maison. Validez-les avec le Bouton en bas de la Liste et votre Budget Estimatif apparaîtra.

CORNALINE, 4 pièces de 78m²

Modèle de Maison CORNALINE, 4 pièces de 78m² - Perspective Avant en Ardoise
Plain-Pied, 4.pcs, de 78,19m²hab
avec Garage de 18,33m²
PdV : 39,44m², 3.Chambres
à partir de
118.100€

CORNALINE Perspective Arrière en Ardoise

Modèle de Maison CORNALINE, 4 pièces de 78m² - Perspective Arrière en Ardoise
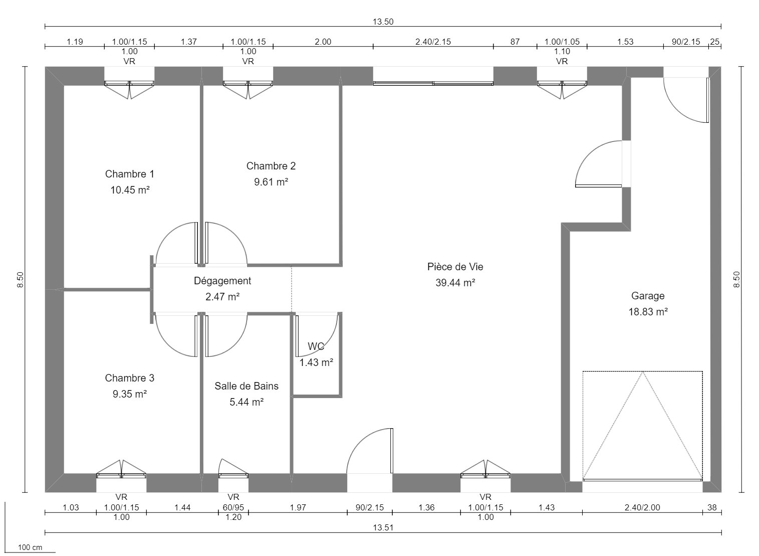
La Construction sur le Terrain que vous avez sélectionné nécessite un élargissement de 1,49m du Modèle CORNALINE.
Les compléments de surface sont indiquées en rouge dans le Tableau des Surfaces ci-dessous.
Terrain : 3m x 1 | 9,00m | 3m x 1, Modèle : 13,51m, Ajustement : 1,49m

CORNALINE Plan du Rez de Chaussée

Modèle de Maison CORNALINE, 4 pièces de 78m² - Plan du RdC

CORNALINE, Proposition d'Aménagement

Modèle de Maison CORNALINE, 4 pièces de 78m² - Proposition d’Aménagement

Tableau des Surfaces du Rez de Chaussée

Pièces Surfaces Habitables Surfaces Annexes
Pièce de Vie 39,44m²
+11,53m²
Dégagement 2,47m²
WC 1,43m²
Salle de Bains 5,44m²
Chambre 1 10,45m²
Chambre 2 9,61m²
Chambre 3 9,35m²
Garage 18,33m²
pondérés à 50%
Surfaces Habitables du Rez de Chaussée : 78,19m²
+11,53m²
89,72m²
Surfaces Annexes du Rez de Chaussée : 18,33m²
soit
9,17m²pond
Surface Pondérée du Modèle CORNALINE ajusté = 98,89m²pond
Prix du Modèle CORNALINE ajusté hors Options = 133.666€
.

Options Possibles du Modèle CORNALINE,
CHOISISSEZ les VÔTRES

et Validez-les (en bas de la Liste d'Options) pour obtenir votre Budget
MENUISERIES EXTÉRIEURES
Porte d'Entrée en PVC Blanc RAL 9016 Base
Porte d'Entrée en Acier Couleur 345€
Menuiseries Extérieures en PVC Blanc RAL 9016 Base
Menuiseries Extérieures en Aluminium Blanc RAL 9016 720€
Menuiseries Extérieures en Aluminium Couleur 1760€
Volets Roulants Manuels Base
Volets Roulants Motorisés à Commande Filaire 1050€
Volets Roulants Motorisés à Commande Radio 1400€
Volets Battants 2100€
MENUISERIES INTÉRIEURES
Portes intérieures Isoplane (lisse) Base
Portes intérieures gravées Design 300€
Chambre 1
Façade de Placard coulissante, Largeur de 1,51 à 2,50m 350€
Étagères et Penderie pour Placard, Largeur de 1,51 à 2,50m 350€
Chambre 3
Façade de Placard coulissante, Largeur de 1,51 à 2,50m 350€
Étagères et Penderie pour Placard, Largeur de 1,51 à 2,50m 350€
ISOLATION
Isolation des Combles Perdus avec 36cm de laine soufflée (R=7m²K/W) Base
Isolation des Combles Perdus avec 46cm de laine soufflée (R=9m²K/W) 485€
ÉQUIPEMENTS de la CUISINE et des PIÈCES d'EAU
Pièce de Vie
Évier Inox sur Meuble Mélaminé de 120cm Base
Alimentations EC-EF et Évacuation EU en attente -100€
Cuisine Aménagée de 9 éléments en Fourniture seule 3000€
WC
Cuvette posée au sol et Réservoir apparent Base
Cuvette suspendue et Réservoir encastré 300€
Salle de Bains
Lavabo sur Colonne Base
Alimentations EC-EF et Évacuation EU en attente -50€
Meuble Simple Vasque de 70 à 90cm 827€
Meuble Double Vasque de 120 à 150cm 1086€
Écran Pare Baignoire 250€
REVÊTEMENTS de SOLS
Carrelage Grés Cérame (pleine masse) de 45x45cm Base
Carrelage Grés Cérame (pleine masse) de 60x60cm 244€
Carrelage Grés Émaillé de 45x45cm -195€
Carrelage Grés Émaillé de 60x60cm -98€
Sols des Chambres réalisés par vos soins (Fourniture Seule)
Parquet Stratifié 441€
Parquet à couche d'usure en bois de 2mm 735€
Revêtement de Sol Souple en Dalles PVC 471€
Revêtement de Sol Souple en lés 353€
Sols des Chambres confiés au Constructeur (Fourniture et Pose)
Parquet Stratifié en F&P 882€
Parquet à couche d'usure en bois de 2mm en F&P 1471€
Revêtement de Sol Souple en Dalles PVC en F&P 941€
Revêtement de Sol Souple en lés en F&P 647€
PEINTURES INTÉRIEURES
Peintures réalisées par vos soins (Fourniture Seule)
Peintures des Murs, Portes et Plafonds 1350€
Peintures confiées au Constructeur (Fourniture et Application)
Peintures des Murs, Portes et Plafonds en F&A 6750€
TRAVAUX EXTÉRIEURS
Travaux Extérieurs réalisées par vos soins (Fourniture Seule)
Clôture en Grillage souple vert maille soudée 40x100mm 443€
Semence pour Pelouse 337€
Fournitures pour Terrasse de 30m² en Lames Bois Composite 1200€
Travaux Extérieurs confiés au Constructeur (Fourniture et Pose)
Clôture en Grillage souple vert maille soudée 40x100mm en F&P 1774€
Réalisation de la Pelouse 2022€
Réalisation d'une Terrasse de 30m² en Lames Bois Composite 2800€
.
Vous avez sélectionné un Terrain sur la Commune de La Grigonnais et le Modèle de Maison CORNALINE.
Vous êtes à l'Étape 2 : Choisissez les Options de votre Maison. Validez-les avec le Bouton en bas de la Liste et votre Budget Estimatif apparaîtra.