CONCEPTEUR de PROJET
Mon Projet Maison
Le Concepteur de Projet MPM vous permet d'associer un Terrain disponible en Loire Atlantique avec un Modèle de Maison MPM compatible.
Vous concevez ainsi votre propre Projet Terrain + Maison dont vous pouvez choisir les Options puis obtenir le Budget Estimatif.
La Procédure réalisable en quelques clics ne vous prendra qu'1 à 2 minutes.
TERRAINS DISPONIBLES à Puceul
| Lots disponibles |
Surface | Orientation | Prix NV | |
|---|---|---|---|---|
| Choisissez le vôtre | ||||
Le Clos des Maubées (2 lots disponibles) |
||||
| 11 Incompatible | 527m² | 231° |
41.500€ | |
| 26 Compatible | 503m² | 60° |
41.000€ | |

Puceul est Non Éligible au Dispositif PINEL (Zone C)
Puceul (44390)
1.076 habitants

Dispositif PINEL (Zone C)
En savoir plus sur Puceul
(Ouverture dans un autre onglet)
(Ouverture dans un autre onglet)
Le Marqueur Orange vous indique la Position de la Mairie de Puceul.
Le Marqueur Bleu vous indique la Position du Lotissement sélectionné.
Le Marqueur Bleu vous indique la Position du Lotissement sélectionné.
.
Vous avez sélectionné un Terrain sur la Commune de Puceul et le Modèle de Maison MAGNÉSITE.
Vous êtes à l'Étape 2 : Choisissez les Options de votre Maison. Validez-les avec le Bouton en bas de la Liste et votre Budget Estimatif apparaîtra.
Vous êtes à l'Étape 2 : Choisissez les Options de votre Maison. Validez-les avec le Bouton en bas de la Liste et votre Budget Estimatif apparaîtra.
MAGNÉSITE, 5 pièces de 94m²
Plain-Pied, 5.pcs, de 93,84m²hab
avec Garage de 19,64m²
PdV : 49,76m², 3.Chambres
à partir de
142.700€
142.700€
Perspective Arrière en Ardoise
Terrain : 3m x 1 | 16,00m | 0m x 1, Modèle : 14,54m, Sans Ajustement
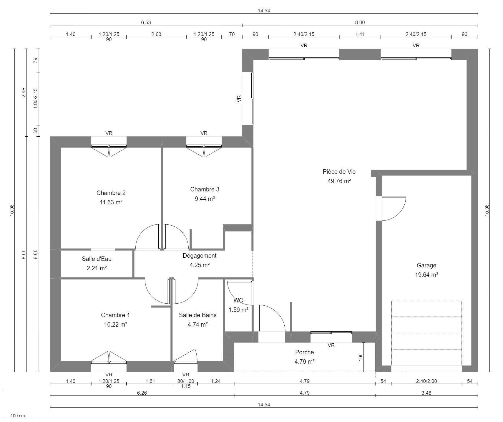
MAGNÉSITE Plan du Rez de Chaussée
Proposition d'Aménagement du RdC
Tableau des Surfaces du Rez de Chaussée
| Pièces | Surfaces Habitables | Surfaces Annexes |
|---|---|---|
| Pièce de Vie | 49,76m² | |
| WC | 1,59m² | |
| Dégagement | 4,25m² | |
| Salle de Bains | 4,74m² | |
| Chambre 1 | 10,22m² | |
| Chambre 2 | 11,63m² | |
| Salle d'Eau de la Chambre 2 | 2,21m² | |
| Chambre 3 | 9,44m² | |
| Garage | 19,64m² pondérés à 50% |
|
| Porche d'Entrée | 4,79m² pondérés à 40% |
|
| Surfaces Habitables du Rez de Chaussée : | 93,84m² | |
| Surfaces Annexes du Rez de Chaussée : | 24,43m² soit 11,74m²pond |
|
Surface Pondérée du Modèle MAGNÉSITE = 105,58m²pond
Vous avez sélectionné un Terrain sur la Commune de Puceul et le Modèle de Maison MAGNÉSITE.
Vous êtes à l'Étape 2 : Choisissez les Options de votre Maison. Validez-les avec le Bouton en bas de la Liste et votre Budget Estimatif apparaîtra.
Vous êtes à l'Étape 2 : Choisissez les Options de votre Maison. Validez-les avec le Bouton en bas de la Liste et votre Budget Estimatif apparaîtra.

