CONCEPTEUR de PROJET
Mon Projet Maison
Le Concepteur de Projet MPM vous permet d'associer un Terrain disponible en Loire Atlantique avec un Modèle de Maison MPM compatible.
Vous concevez ainsi votre propre Projet Terrain + Maison dont vous pouvez choisir les Options puis obtenir le Budget Estimatif.
La Procédure réalisable en quelques clics ne vous prendra qu'1 à 2 minutes.
TERRAINS DISPONIBLES à Puceul
| Lots disponibles |
Surface | Orientation | Prix NV | |
|---|---|---|---|---|
| Choisissez le vôtre | ||||
Le Clos des Maubées (2 lots disponibles) |
||||
| 11 Compatible |
527m² | 231° |
41.500€ | |
| 26 Compatible | 503m² | 60° |
41.000€ | |
Vous pouvez sélectionner un autre terrain compatible à tout moment.

Puceul est Non Éligible au Dispositif PINEL (Zone C)
Puceul (44390)
1.076 habitants

Dispositif PINEL (Zone C)
En savoir plus sur Puceul
(Ouverture dans un autre onglet)
(Ouverture dans un autre onglet)
Le Marqueur Orange vous indique la Position de la Mairie de Puceul.
Le Marqueur Bleu vous indique la Position du Lotissement sélectionné.
Le Marqueur Bleu vous indique la Position du Lotissement sélectionné.
.
Vous avez sélectionné un Terrain sur la Commune de Puceul et le Modèle de Maison LARIMAR.
Vous êtes à l'Étape 2 : Choisissez les Options de votre Maison. Validez-les avec le Bouton en bas de la Liste et votre Budget Estimatif apparaîtra.
Vous êtes à l'Étape 2 : Choisissez les Options de votre Maison. Validez-les avec le Bouton en bas de la Liste et votre Budget Estimatif apparaîtra.
LARIMAR, 4 pièces de 93m²
R+1, 4.pcs, de 92,95m²hab
avec Garage de 16,73m²
PdV : 44,40m², 3.Chambres
à partir de
145.500€
145.500€
LARIMAR, Perspective Arrière en Ardoise
Terrain : 3m x 1 | 16,00m | 0m x 1, Modèle : 6,60m, Sans Ajustement
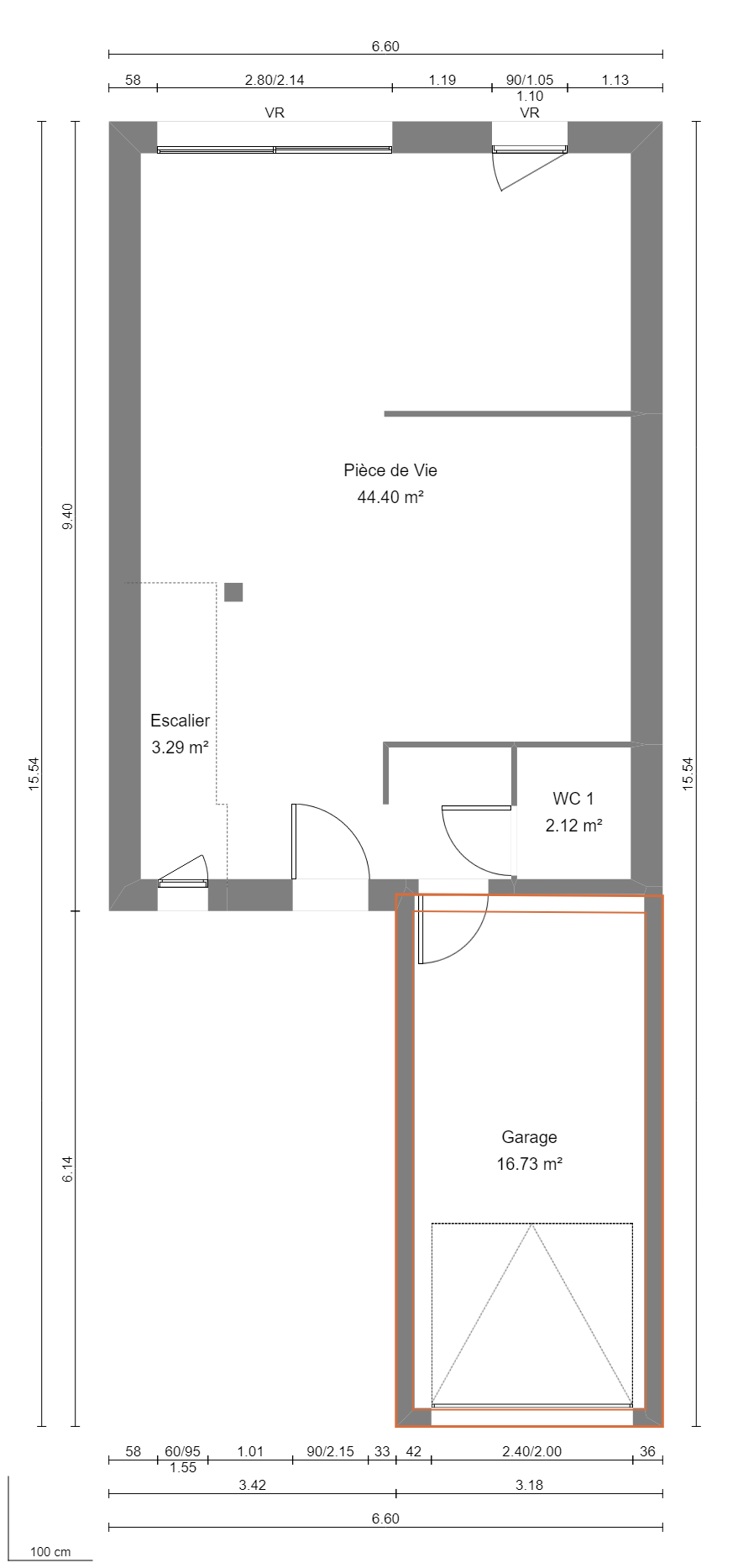
LARIMAR Plan du Rez de Chaussée
LARIMAR, Proposition d'Aménagement du RdC
Tableau des Surfaces du Rez de Chaussée
| Pièces | Surfaces Habitables | Surfaces Annexes |
|---|---|---|
| Pièce de Vie | 44,40m² | |
| WC 1 | 2,12m² | |
| Dessous Escalier avec HSP > 1,80mht | 1,10m² | |
| Dessous Escalier avec HSP < 1,80mht | 2,19m² pondérés à 100% |
|
| Garage | 16,73m² pondérés à 50% |
|
| Surfaces Habitables du Rez de Chaussée : | 47,62m² | |
| Surfaces Annexes du Rez de Chaussée : | 18,92m² soit 10,56m²pond |
|
LARIMAR Plan du 1er Étage
LARIMAR, Proposition d'Aménagement du R+1
Tableau des Surfaces du 1er Étage
| Pièces | Surfaces Habitables | Surfaces Annexes |
|---|---|---|
| Palier | 4,10m² | |
| WC 2 | 1,89m² | |
| Salle de Bains | 6,29m² | |
| Chambre 1 | 11,02m² | |
| Chambre 2 | 11,02m² | |
| Chambre 3 | 11,01m² | |
| Trémie d'Escalier | 3,51m² pondérés à 50% |
|
| Surfaces Habitables du 1er Étage : | 45,33m² | |
| Surfaces Annexes du 1er Étage : | 3,51m² soit 1,76m²pond |
|
Surface Pondérée du Modèle LARIMAR = 105,26m²pond
Vous avez sélectionné un Terrain sur la Commune de Puceul et le Modèle de Maison LARIMAR.
Vous êtes à l'Étape 2 : Choisissez les Options de votre Maison. Validez-les avec le Bouton en bas de la Liste et votre Budget Estimatif apparaîtra.
Vous êtes à l'Étape 2 : Choisissez les Options de votre Maison. Validez-les avec le Bouton en bas de la Liste et votre Budget Estimatif apparaîtra.

