CONCEPTEUR de PROJET
Mon Projet Maison
Le Concepteur de Projet MPM vous permet d'associer un Terrain disponible en Loire Atlantique avec un Modèle de Maison MPM compatible.
Vous concevez ainsi votre propre Projet Terrain + Maison dont vous pouvez choisir les Options puis obtenir le Budget Estimatif.
La Procédure réalisable en quelques clics ne vous prendra qu'1 à 2 minutes.
TERRAINS DISPONIBLES à Moisdon-la-Rivière
| Lots disponibles |
Surface | Orientation | Prix NV | |
|---|---|---|---|---|
| Choisissez le vôtre | ||||
Les Champalins (25 lots disponibles) |
||||
| 1 Incompatible | 633m² | 158° |
37.990€ | |
| 2 Incompatible | 389m² | 158° |
24.000€ | |
| 3 Incompatible | 540m² | 280° |
32.500€ | |
| 4 Incompatible | 431m² | 280° |
26.000€ | |
| 6 Incompatible | 353m² | 280° |
21.900€ | |
| 7 Compatible |
457m² | 190° |
28.000€ | |
| 9 Incompatible | 449m² | 190° |
27.000€ | |
| 10 Compatible avec ajustement de 2,09m |
436m² | 100° |
26.500€ | |
| 11 Incompatible | 421m² | 100° |
25.500€ | |
| 12 Incompatible | 617m² | 280° |
37.100€ | |
| 13 Incompatible | 462m² | 339° |
28.000€ | |
| 14 Compatible |
464m² | 339° |
28.000€ | |
| 15 Compatible |
451m² | 339° |
27.500€ | |
| 16 Compatible |
479m² | 159° |
29.000€ | |
| 17 Incompatible | 419m² | 248° |
25.500€ | |
| 18 Compatible avec ajustement de 1,09m |
419m² | 248° |
25.500€ | |
| 19 Compatible | 615m² | 248° |
36.900€ | |
| 20 Compatible |
519m² | 356° |
31.500€ | |
| 21 Compatible |
434m² | 356° |
26.500€ | |
| 22 Compatible |
578m² | 85° |
35.000€ | |
| 23 Compatible |
568m² | 100° |
34.000€ | |
| 24 Compatible |
425m² | 10° |
25.500€ | |
| 26 Incompatible | 471m² | 190° |
28.500€ | |
| 27 Compatible |
653m² | 281° |
39.500€ | |
| 28 Compatible |
743m² | 281° |
39.900€ | |
Vous pouvez sélectionner un autre terrain compatible à tout moment.

Moisdon-la-Rivière est Non Éligible au Dispositif PINEL (Zone C)
Moisdon-la-Rivière (44520)
1.943 habitants

Dispositif PINEL (Zone C)
En savoir plus sur Moisdon-la-Rivière
(Ouverture dans un autre onglet)
(Ouverture dans un autre onglet)
Moisdon-la-Rivière
Les Champalins : 25 lots
Le Marqueur Orange vous indique la Position de la Mairie de Moisdon-la-Rivière.
Le Marqueur Bleu vous indique la Position du Lotissement sélectionné.
Le Marqueur Bleu vous indique la Position du Lotissement sélectionné.
.
Vous avez sélectionné un Terrain sur la Commune de Moisdon-la-Rivière et le Modèle de Maison MALACHITE.
Vous êtes à l'Étape 2 : Choisissez les Options de votre Maison. Validez-les avec le Bouton en bas de la Liste et votre Budget Estimatif apparaîtra.
Vous êtes à l'Étape 2 : Choisissez les Options de votre Maison. Validez-les avec le Bouton en bas de la Liste et votre Budget Estimatif apparaîtra.
MALACHITE, 5 pièces de 95m²
Plain-Pied, 5.pcs, de 95,64m²hab
avec Garage de 18,58m²
PdV : 47,54m², 4.Chambres
à partir de
141.900€
141.900€
MALACHITE, Perspective Arrière en Ardoise
Terrain : 3m x 1 | 11,00m | 0m x 1, Modèle : 13,91m, Sans Ajustement
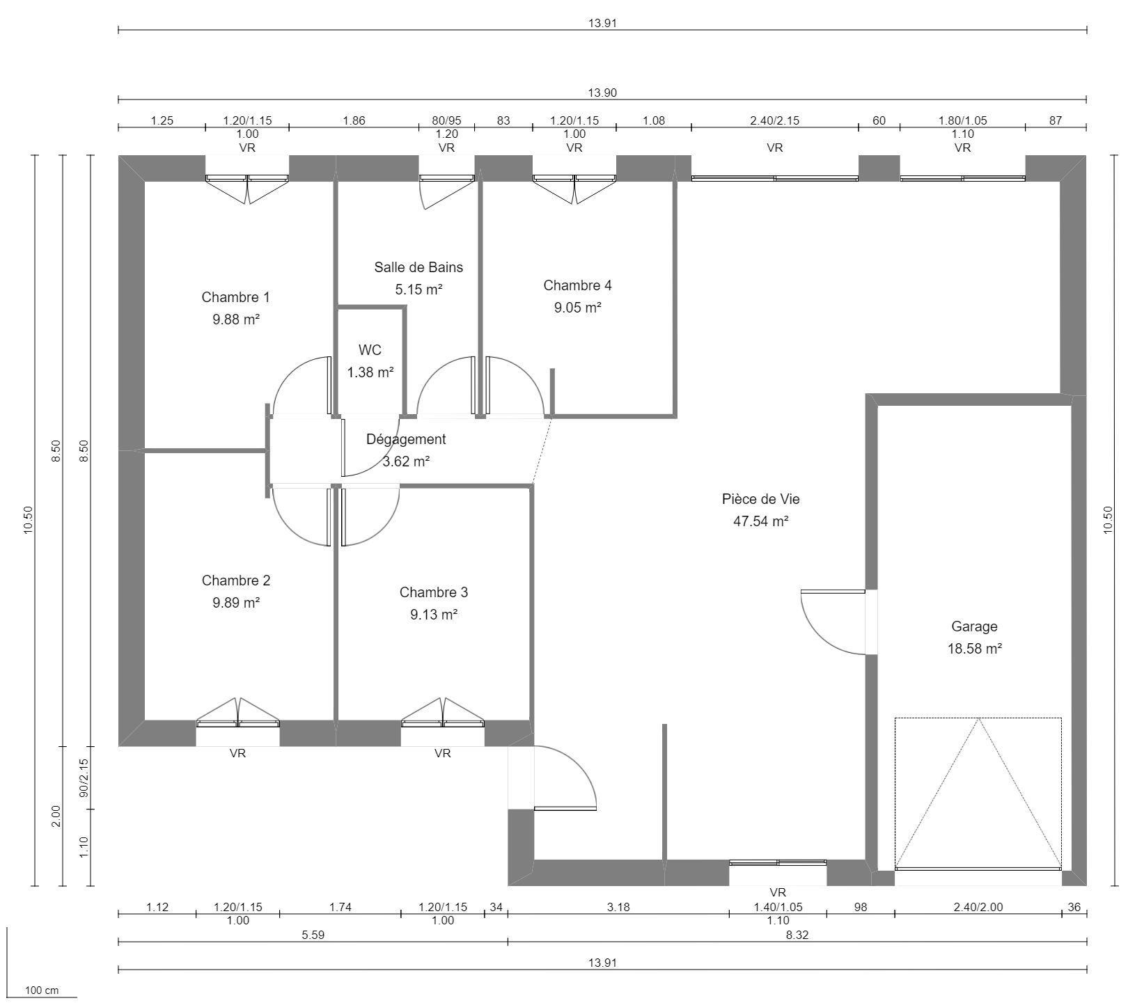
MALACHITE Plan du Rez de Chaussée
MALACHITE, Proposition d'Aménagement
Tableau des Surfaces du Rez de Chaussée
| Pièces | Surfaces Habitables | Surfaces Annexes |
|---|---|---|
| Pièce de Vie | 47,54m² | |
| Dégagement | 3,62m² | |
| WC | 1,38m² | |
| Salle de Bains | 5,15m² | |
| Chambre 1 | 9,88m² | |
| Chambre 2 | 9,89m² | |
| Chambre 3 | 9,13m² | |
| Chambre 4 | 9,05m² | |
| Garage | 18,58m² pondérés à 50% |
|
| Surfaces Habitables du Rez de Chaussée : | 95,64m² | |
| Surfaces Annexes du Rez de Chaussée : | 18,58m² soit 9,29m²pond |
|
Surface Pondérée du Modèle MALACHITE = 104,93m²pond
Vous avez sélectionné un Terrain sur la Commune de Moisdon-la-Rivière et le Modèle de Maison MALACHITE.
Vous êtes à l'Étape 2 : Choisissez les Options de votre Maison. Validez-les avec le Bouton en bas de la Liste et votre Budget Estimatif apparaîtra.
Vous êtes à l'Étape 2 : Choisissez les Options de votre Maison. Validez-les avec le Bouton en bas de la Liste et votre Budget Estimatif apparaîtra.

