CONCEPTEUR de PROJET
Mon Projet Maison
Le Concepteur de Projet MPM vous permet d'associer un Terrain disponible en Loire Atlantique avec un Modèle de Maison MPM compatible.
Vous concevez ainsi votre propre Projet Terrain + Maison dont vous pouvez choisir les Options puis obtenir le Budget Estimatif.
La Procédure réalisable en quelques clics ne vous prendra qu'1 à 2 minutes.
TERRAINS DISPONIBLES à Moisdon-la-Rivière
| Lots disponibles |
Surface | Orientation | Prix NV | |
|---|---|---|---|---|
| Choisissez le vôtre | ||||
Les Champalins (25 lots disponibles) |
||||
| 1 Incompatible | 633m² | 158° |
37.990€ | |
| 2 Incompatible | 389m² | 158° |
24.000€ | |
| 3 Compatible avec ajustement de 0,77m |
540m² | 280° |
32.500€ | |
| 4 Incompatible | 431m² | 280° |
26.000€ | |
| 6 Incompatible | 353m² | 280° |
21.900€ | |
| 7 Compatible |
457m² | 190° |
28.000€ | |
| 9 Compatible |
449m² | 190° |
27.000€ | |
| 10 Compatible |
436m² | 100° |
26.500€ | |
| 11 Incompatible | 421m² | 100° |
25.500€ | |
| 12 Incompatible | 617m² | 280° |
37.100€ | |
| 13 Incompatible | 462m² | 339° |
28.000€ | |
| 14 Compatible |
464m² | 339° |
28.000€ | |
| 15 Compatible |
451m² | 339° |
27.500€ | |
| 16 Compatible |
479m² | 159° |
29.000€ | |
| 17 Incompatible | 419m² | 248° |
25.500€ | |
| 18 Compatible avec ajustement de 2,27m |
419m² | 248° |
25.500€ | |
| 19 Compatible |
615m² | 248° |
36.900€ | |
| 20 Compatible |
519m² | 356° |
31.500€ | |
| 21 Compatible |
434m² | 356° |
26.500€ | |
| 22 Compatible |
578m² | 85° |
35.000€ | |
| 23 Compatible |
568m² | 100° |
34.000€ | |
| 24 Compatible |
425m² | 10° |
25.500€ | |
| 26 Incompatible | 471m² | 190° |
28.500€ | |
| 27 Compatible |
653m² | 281° |
39.500€ | |
| 28 Compatible |
743m² | 281° |
39.900€ | |
Vous pouvez sélectionner un autre terrain compatible à tout moment.

Moisdon-la-Rivière est Non Éligible au Dispositif PINEL (Zone C)
Moisdon-la-Rivière (44520)
1.943 habitants

Dispositif PINEL (Zone C)
En savoir plus sur Moisdon-la-Rivière
(Ouverture dans un autre onglet)
(Ouverture dans un autre onglet)
Moisdon-la-Rivière
Les Champalins : 25 lots
Le Marqueur Orange vous indique la Position de la Mairie de Moisdon-la-Rivière.
Le Marqueur Bleu vous indique la Position du Lotissement sélectionné.
Le Marqueur Bleu vous indique la Position du Lotissement sélectionné.
.
Vous avez sélectionné un Terrain sur la Commune de Moisdon-la-Rivière et le Modèle de Maison FLUORITE.
Vous êtes à l'Étape 2 : Choisissez les Options de votre Maison. Validez-les avec le Bouton en bas de la Liste et votre Budget Estimatif apparaîtra.
Vous êtes à l'Étape 2 : Choisissez les Options de votre Maison. Validez-les avec le Bouton en bas de la Liste et votre Budget Estimatif apparaîtra.
FLUORITE, 4 pièces de 87m²
Plain-Pied, 4.pcs, de 87,27m²hab
avec Garage de 17,69m²
PdV : 44,16m², 3.Chambres
à partir de
134.900€
134.900€
FLUORITE, Perspective Arrière en Ardoise
La Construction sur le Terrain que vous avez sélectionné nécessite un élargissement de 0,77m du Modèle FLUORITE.
Les compléments de surface sont indiquées en rouge dans le Tableau des Surfaces ci-dessous.
Les compléments de surface sont indiquées en rouge dans le Tableau des Surfaces ci-dessous.
Terrain : 3m x 1 | 7,50m | 3m x 1, Modèle : 12,73m, Ajustement : 0,77m
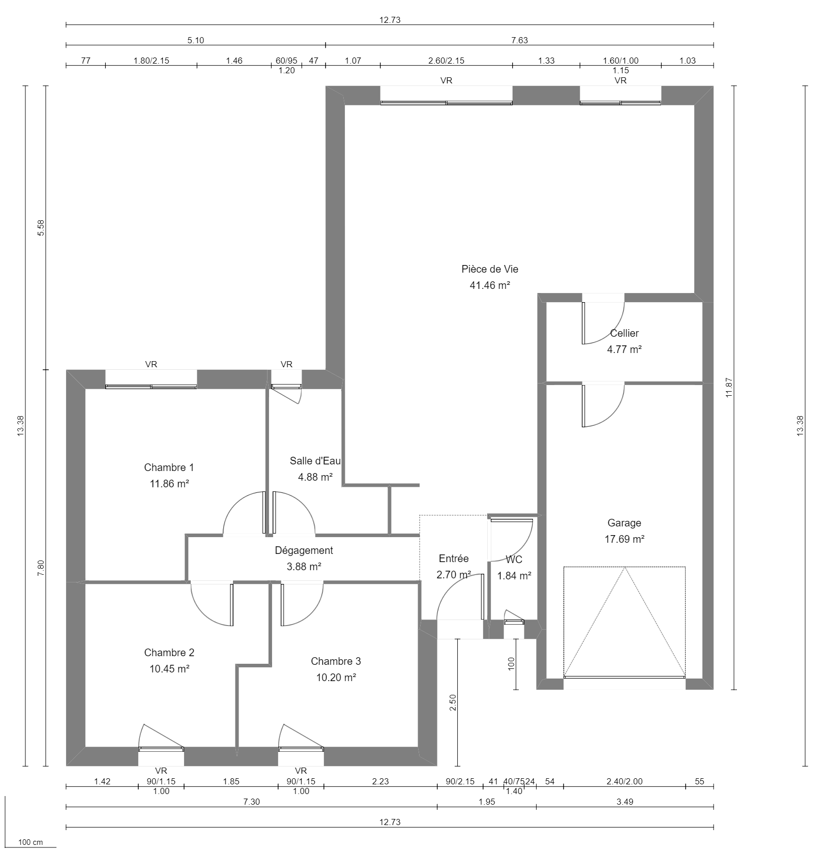
FLUORITE Plan du Rez de Chaussée
FLUORITE, Proposition d'Aménagement
Tableau des Surfaces du Rez de Chaussée
| Pièces | Surfaces Habitables | Surfaces Annexes |
|---|---|---|
| Pièce de Vie | 41,46m² +6,21m² |
|
| Entrée | 2,70m² +1,59m² |
|
| WC | 1,84m² | |
| Dégagement | 3,88m² | |
| Salle d'Eau | 4,88m² | |
| Chambre 1 | 11,86m² | |
| Chambre 2 | 10,45m² | |
| Chambre 3 | 10,20m² | |
| Garage | 17,69m² pondérés à 50% |
|
| Cellier non isolé | 4,77m² pondérés à 60% |
|
| Porche | 1,95m² pondérés à 40% |
|
| Surfaces Habitables du Rez de Chaussée : | 87,27m² +7,79m² 95,06m² |
|
| Surfaces Annexes du Rez de Chaussée : | 24,41m² soit 12,49m²pond |
|
Surface Pondérée du Modèle FLUORITE ajusté = 107,55m²pond
Prix du Modèle FLUORITE ajusté hors Options = 145.417€
Prix du Modèle FLUORITE ajusté hors Options = 145.417€
Vous avez sélectionné un Terrain sur la Commune de Moisdon-la-Rivière et le Modèle de Maison FLUORITE.
Vous êtes à l'Étape 2 : Choisissez les Options de votre Maison. Validez-les avec le Bouton en bas de la Liste et votre Budget Estimatif apparaîtra.
Vous êtes à l'Étape 2 : Choisissez les Options de votre Maison. Validez-les avec le Bouton en bas de la Liste et votre Budget Estimatif apparaîtra.

