CONCEPTEUR de PROJET
Mon Projet Maison
Le Concepteur de Projet MPM vous permet d'associer un Terrain disponible en Loire Atlantique avec un Modèle de Maison MPM compatible.
Vous concevez ainsi votre propre Projet Terrain + Maison dont vous pouvez choisir les Options puis obtenir le Budget Estimatif.
La Procédure réalisable en quelques clics ne vous prendra qu'1 à 2 minutes.
TERRAINS DISPONIBLES à La Limouzinière
| Lots disponibles |
Surface | Orientation | Prix NV | |
|---|---|---|---|---|
| Choisissez le vôtre | ||||
Le Bois Palais (24 lots disponibles) |
||||
| 03 Compatible |
413m² | 216° |
47.500€ | |
| 04 Compatible |
434m² | 216° |
49.900€ | |
| 05 Compatible |
425m² | 216° |
49.500€ | |
| 06 Incompatible | 475m² | 216° |
49.900€ | |
| 08 Compatible |
420m² | 302° |
47.500€ | |
| 09 Compatible |
360m² | 302° |
39.900€ | |
| 10 Compatible | 391m² | 302° |
43.000€ | |
| 11 Compatible |
384m² | 302° |
43.500€ | |
| 12 Compatible |
436m² | 74° |
47.000€ | |
| 13 Compatible |
445m² | 74° |
48.500€ | |
| 14 Compatible |
364m² | 122° |
39.500€ | |
| 15 Compatible avec ajustement de 2,02m |
481m² | 212° |
48.500€ | |
| 16 Compatible |
401m² | 212° |
45.000€ | |
| 17 Compatible |
410m² | 122° |
44.000€ | |
| 18 Compatible |
348m² | 122° |
39.000€ | |
| 19 Compatible |
349m² | 325° |
39.500€ | |
| 20 Compatible |
374m² | 325° |
41.000€ | |
| 21 Compatible |
374m² | 325° |
41.000€ | |
| 23 Compatible |
448m² | 145° |
49.900€ | |
| 24 Compatible |
421m² | 145° |
47.500€ | |
| 25 Compatible |
483m² | 55° |
49.900€ | |
| 26 Compatible |
464m² | 55° |
48.500€ | |
| 27 Compatible |
520m² | 74° |
54.000€ | |
| 28 Compatible |
418m² | 74° |
43.500€ | |
Vous pouvez sélectionner un autre terrain compatible à tout moment.

La Limouzinière est Non Éligible au Dispositif PINEL (Zone C)
La Limouzinière (44310)
2.373 habitants

Dispositif PINEL (Zone C)
En savoir plus sur La Limouzinière
(Ouverture dans un autre onglet)
(Ouverture dans un autre onglet)
La Limouzinière
Le Bois Palais : 24 lots
Le Marqueur Orange vous indique la Position de la Mairie de La Limouzinière.
Le Marqueur Bleu vous indique la Position du Lotissement sélectionné.
Le Marqueur Bleu vous indique la Position du Lotissement sélectionné.
.
Vous avez sélectionné un Terrain sur la Commune de La Limouzinière et le Modèle de Maison DIOPTASE.
Vous êtes à l'Étape 2 : Choisissez les Options de votre Maison. Validez-les avec le Bouton en bas de la Liste et votre Budget Estimatif apparaîtra.
Vous êtes à l'Étape 2 : Choisissez les Options de votre Maison. Validez-les avec le Bouton en bas de la Liste et votre Budget Estimatif apparaîtra.
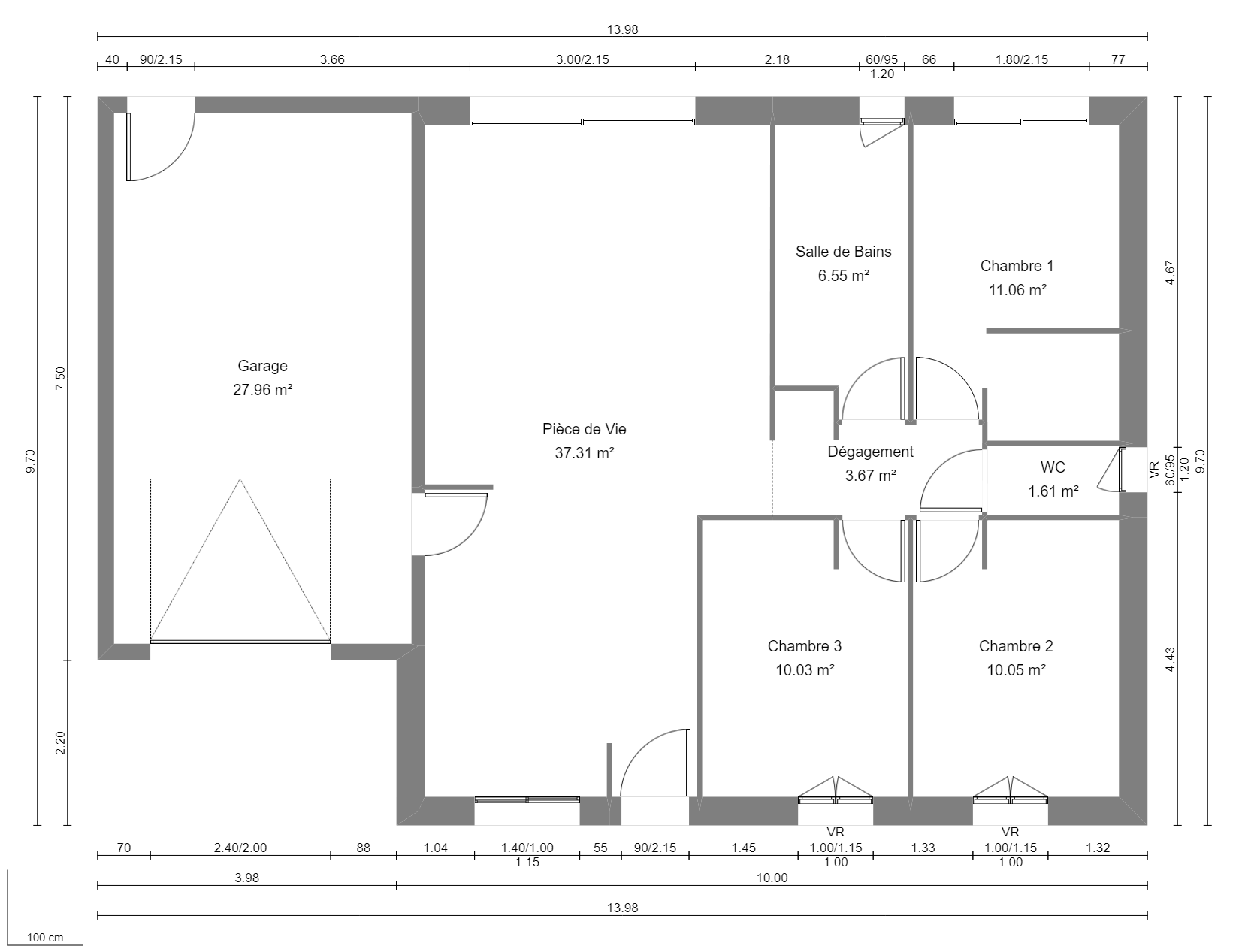
DIOPTASE, 4 pièces de 80m²
Plain-Pied, 4.pcs, de 80,28m²hab
avec Garage de 27,96m²
PdV : 37,31m², 3.Chambres
à partir de
127.500€
127.500€
DIOPTASE, Perspective Arrière en Tuile
Terrain : 3m x 1 | 15,50m | 0m x 1, Modèle : 13,98m, Sans Ajustement
DIOPTASE Plan du Rez de Chaussée
DIOPTASE, Proposition d'Aménagement
Tableau des Surfaces du Rez de Chaussée
| Pièces | Surfaces Habitables | Surfaces Annexes |
|---|---|---|
| Pièce de Vie | 37,31m² | |
| Dégagement | 3,67m² | |
| WC | 1,61m² | |
| Salle de Bains | 6,55m² | |
| Chambre 1 | 11,06m² | |
| Chambre 2 | 10,05m² | |
| Chambre 3 | 10,03m² | |
| Garage | 27,96m² pondérés à 50% |
|
| Surfaces Habitables du Rez de Chaussée : | 80,28m² | |
| Surfaces Annexes du Rez de Chaussée : | 27,96m² soit 13,98m²pond |
|
Surface Pondérée du Modèle DIOPTASE = 94,26m²pond
Vous avez sélectionné un Terrain sur la Commune de La Limouzinière et le Modèle de Maison DIOPTASE.
Vous êtes à l'Étape 2 : Choisissez les Options de votre Maison. Validez-les avec le Bouton en bas de la Liste et votre Budget Estimatif apparaîtra.
Vous êtes à l'Étape 2 : Choisissez les Options de votre Maison. Validez-les avec le Bouton en bas de la Liste et votre Budget Estimatif apparaîtra.

